Zum Hauptinhalt springen Zur Suche springen Zum Menü springen

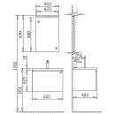
StoneArt Set Milano ME-0600 dunkelgrau 60x45

503,20 €
inkl. 20% USt. , zzgl. Versand
Stk